电液动平板闸门是一种适用于往复推拉直线(或往复旋转一定角度)运动,可用于粉料、颗粒料、颗粒料及小块物料的流量、输送量的主要控制设备,也可用于远距离及高空危险地区,并可和计算机联网进行集中(程序)控制。现已广泛应用于冶金、矿山、煤炭、电力、机械、粮食、水泥、化工、水利、运输等行业,是不可缺少的通用动力源。
一、电液动平板闸门结构组件
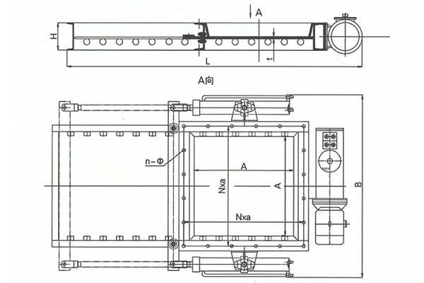
由平板闸门、电液推杆、闸板组成,电波推杆驱动闸板作水平方向的往复运动,达到阀门的启闭目的

二、电液动平板闸门工作原理
工作原理:用电机来作为动力源,通过电机的正转或反转,来带动双向齿轮泵来通过油路输出压力油,经油路集成阀组,送至工作油缸,从而实现活塞杆的往复运动,来启闭平板阀。
三、电液动平板闸门具备的功能
1、过载保护功能:电液推杆工作时,如活塞杆所受外力超过额定的输出力或活塞已到终点,电机仍在转动,这时油路中油压增高到设定的压力,溢流阀迅速而溢流,实现过载自动保护,从而实现对电机及管路的保护。
2、闸门开度自锁功能:此功能由油路集成块中的压力自锁机构来实现,比如电机停止运转,活塞杆则会立即停留在一定的位置,压力油会处在保压状态。
3、用户可在出厂设计的速度范围内来进行无级调节速度,调节推、拉力,调节行程。

四、电液动平板闸门优势特点
1、启闭灵活可靠,浮动阀座设计,双向启闭,橡胶软密封。
2、密封面喷涂硬质合金,采用耐冲蚀闸板,还装有导向条给导向;
3、闸体承载能力好,直通式设计,流阻很小;
4、闸杆采用复合填料,多重密封,摩擦力小,密封严密。
五、采购须知
1、常规设计速度为10mm/s~110mm/s。(推拉速有特殊要求订货时需说明)
2、常规设计电机电压为380V,防护等级为IP44,绝缘等级为B级,可依据用户需求配220V或415V电液,防护等级为IP54、IP55、IP65,或耐高温等特殊电机。
3、无特殊说明,电液动推杆可适应海拔高度不超过1000m,相对湿度不超过百分之90,工作环境温度为零下5倒50℃。
4、可根据需求为您加装手动泵或手轮装置,实现手动驱动。

六、电液推杆安装维护要点
1、向电液推杆内注入洁净的46#液压油(注入前要过滤),装好加油口盖,检查密封性能,接通电动机电源,将电液推杆安装在工作位置连接好传动装置后,即可使用。
2、前已经质检、调试,通常不需要拆卸维修。
3、在使用之前应加入清洁的46#液压油。
4、液压油一般的要每半年更换一次,在更换时,记得要用煤油清洗电液推杆内部。
5、月检时应着重检查各部件是否松动或漏油,如果有要及时处理。
6、电液推杆应每年更换一次内部的密封件,确保可正常使用。