平面滑动钢闸门是水工建筑物中的重要组成部分。在水利工程闸门中起到挡水、控制水流、根据要求局部或全部开启闸门泄放水流、调节上下游水位、放运船只木排、排冰排污等作用。

一、平面滑动钢制闸门工作原理
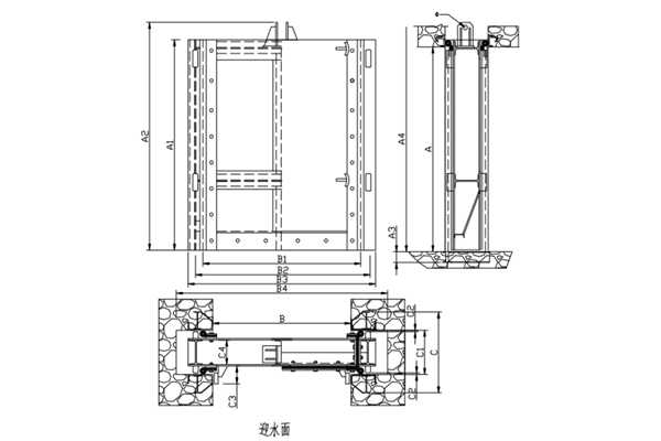
门叶组成:由面板、主梁、边梁、水平次梁、垂直次梁和支承行走部分等组成。梁系与面板形成刚性的整体,面板为四周固定支承,强度高,受力条件好,而且结构也较为简单。
工作原理是利用钢板的升降来控制水流的开平面定轮钢板闸门是一种常见的水利工程设施,闭。这种闸门的结构简单、操作方便,广泛应用于河流、渠道、水库等水利工程中。
二、平面滑动钢制闸门优点
1、适用范围广:不论是进水渠道还是排河,它都能轻松应对。止水设计更是巧妙,闸前上游三边止水,进水闸孔闸后下游四边止水,一切尽在掌控。
2、个性定制,满足特殊需求:你知道吗?我们还可以根据用户的特殊要求,把滑动支承改为滚动支承,让闸门更加灵活自如。另外,如果你有特殊的图样需求,我们也可以为你量身打造,或者为你设计全新的异形型钢闸门图样
3、启动机配置多样:水利工程的水头有高有低,不用担心,我们会根据你的需求,智能匹配适合的启动机。启门力、闸门面积、重量、螺杆重量、摩擦,还有安全系数,我们都会一一考虑,确保一切运行顺畅。
4、规格型号多样,规格1000-2000时为型钢结构整体式,选用单吊启闭机,规格3000-10000时为型钢结构组装式,选用双吊启闭机;
5、焊接性能优越,强度高,焊接钢闸门的自重相对轻,变形小且易于控制和矫正。
6、不透水性好。可承受很大的水压力等。

三、平面滑动钢制闸门安装要点
1、拿到钢制闸门,先别急着动手。先好好看看那份安装说明书和图纸,了解一下安装的大致步骤。别忘了检查那些重要的零件,还有部件是否都拼接得严丝合缝。通风口、洞口、渠道、管道这些,都得符合标准规格,才能确保一切顺利进行。
2、安装前,螺栓的检查可是重中之重。如果发现有些螺栓有点松,那就得赶紧拧紧,确保每个部件都稳稳当当的。
3、组件检查,主立架、副架、横架、闸板,这些部件的连接止水面,得确保它们都在同一水平面上,没有错位。如果有问题,调整一下连接螺栓就好了。
4、注意整体性,安装闸门时,得特别注意整体性。别随便拆卸,不然出了问题可就麻烦了。
5、吊装与调整,闸门整体吊装到位后,螺栓得拧紧,位置也得找准。用塞尺检测一下,止水带面的缝隙小于0.3毫米,闸门一期基础平面布置设有钢筋并预留一定的焊接长度。
6、开始焊接,到了焊接这一步,可得用对焊条。铜口就用铜焊条,不锈钢、铝也是同理。焊完了还得打磨一下,让表面看起来更平滑。就可以进行二阶段浇筑了。
7、检查与清理,所有部件都装好了,别忘了检查一遍。焊接、拼接、粘贴、混泥土浇筑的地方,都得好好看看。闸门周边也要清理干净,这样才能保证闸门正常使用。
8、防锈处理,防锈可是闸门使用过程中的大事。涂点防锈剂,让闸板和门框都保持平整整洁,这样就不容易生锈了。
9、精度调整,之后,还得对钢制闸门的精度进行调整。通过数据记录和反复测试,直到达到良好的状态,这才算是大功告成!

