平面滑动钢制闸门HDZ选型参数说明如下,包含了平面滑动钢制闸门HDZ的外形结构图、型号外形尺寸参数、选型注意事项等内容,方便您快速选型。
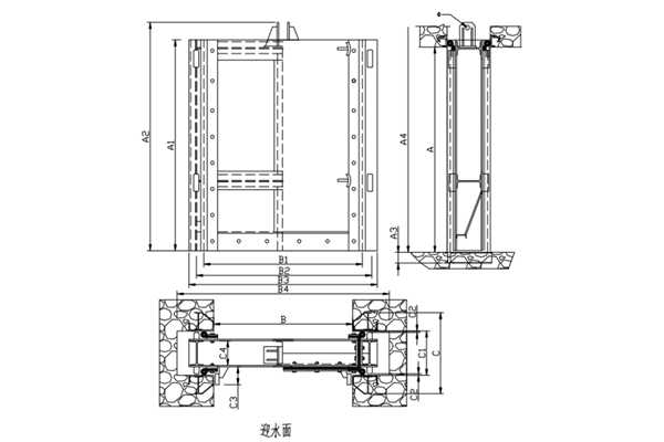
一、平面滑动钢制闸门HDZ外形结构图

二、平面滑动钢制闸门选型尺寸参数表
| 型号规格 | 外形尺寸(mm) | 适应水头(m) | ||||||||||||
| A | A1 | A2 | A3 | B | B1 | B2 | B3 | C | C1 | C2 | C3 | Φ | ||
| HDZ-1000×1000 | 1000 | 1100 | 1243 | 100 | 1000 | 1200 | 1250 | 1300 | 240 | 317 | 6 | 130 | 27 | 2 |
| HDZ-2000x2000 | 2000 | 2100 | 2294 | 100 | 2000 | 2200 | 2250 | 2300 | 300 | 317 | 8 | 180 | 32 | 3 |
| HDZ-3000×3000 | 3000 | 3100 | 3354 | 100 | 3000 | 3200 | 3320 | 3440 | 390 | 356 | 8 | 250 | 2×37 | 4 |
| HDZ-4000x4000 | 4000 | 4100 | 4410 | 140 | 4000 | 4200 | 4340 | 4480 | 480 | 440 | 10 | 320 | 2×47 | 5 |
| HDZ-5000x5000 | 5000 | 5100 | 5490 | 140 | 5000 | 5200 | 5380 | 5560 | 560 | 520 | 10 | 400 | 2×52 | 6 |
| HDZ-6000x6000 | 6000 | 6100 | 6400 | 140 | 6000 | 6200 | 9380 | 6560 | 640 | 600 | 10 | 480 | 2×62 | 6 |
| HDZ-7000x7000 | 7000 | 7100 | 7400 | 140 | 7000 | 7200 | 7410 | 7620 | 760 | 720 | 10 | 600 | 2×72 | 7 |
| HDZ-8000×8000 | 8000 | 8100 | 8440 | 140 | 8000 | 8200 | 8410 | 8620 | 880 | 830 | 10 | 700 | 2×82 | 8 |
| HDZ-9000×9000 | 9000 | 9100 | 9490 | 140 | 9000 | 9200 | 9450 | 9450 | 980 | 930 | 10 | 800 | 2×92 | 9 |
| HDZ-10000×10000 | 10000 | 10100 | 10490 | 140 | 10000 | 10200 | 10450 | 10450 | 1080 | 1030 | 10 | 900 | 2×102 | 10 |
三、平面滑动钢制闸门选型说明
1、HDZ系列滑动式钢闸门适用于安装各种水利工程上使用(进水渠道,排河选用闸前上游三边止水,进水闸孔选用闸后下游四边止水;
2、规格1000-2000时为型钢结构整体式,选用单吊启闭机,规格3000-10000时为型钢结构组装式,选用双吊启闭机;
3、根据用户特殊要求,可把滑动支承改为滚动支承;
4、可根据用户来图样,制造各种异形型钢闸门或为用户设计异形型钢闸门图样;
5、根据用户水利工程要求水头高、低配备启动机(启门力=水头+闸门面积、重量+螺杆重量+摩擦、安全系数)。