电液平板阀采用导向轮及传动滚轮结构,具有结构紧凑,防卡料,防闸板跑偏等功能。采用一站两缸方式传动,具有占用空间小,传动平稳,同步性好,便于检修的优点。克服了因一只推杆损坏,导致另一支推杆受憋不同步的现象,是一种新型的插板阀,多用于冶金、矿山、建材等行业,来实现对粉尘物料流量的调控
一、电液平板阀结构原理
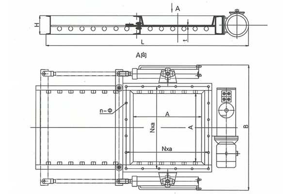
主要由框架、闸板、电液装置等零件组成。工作时,活塞杆受液压力作用带动闸板作水平方向的往复运动,达到阀门的启闭目的。
二、电液平板阀技术性能
1、公称压力(MPa):≤0.6
2、适用介质:粉尘物料
3、适用温度(℃):≤150
4、阀门启闭时间(S):17.3
三、电液平板阀安装布置结构图

四、型号技术参数:
| 型号 | 主要尺寸(mm) | 电液推杆型号 | 功率(KW) | ||||||
| A | B | H | L | t | N x a | n-Φ | |||
| DPZ-B40 | 400 | 790 | 200 | 1285 | 12 | 3×160 | 24-22 | YZW2-420 | 2.2 |
| DPZ-B50 | 500 | 890 | 1485 | 3×195 | 24-22 | YZW2-520 | |||
| DPZ-B60 | 600 | 990 | 1685 | 4×170 | 32-22 | YZW2-520 | |||
| DPZ-B70 | 700 | 1090 | 250 | 1925 | 14 | 4×198 | 32-22 | YZW2-520 | 3 |
| DPZ-B80 | 800 | 1190 | 2135 | 5×178 | 40-22 | YZW2-520 | |||
| DPZ-B90 | 900 | 1290 | 2335 | 5×198 | 40-22 | YZW2-520 | |||
| DPZ-B100 | 1000 | 1390 | 320 | 2570 | 16 | 5×220 | 40-26 | YZW2-520 | 4 |
| DPZ-B120 | 1200 | 1590 | 2850 | 5×260 | 40-26 | YZW2-520 | |||
总结:
以上内容仅供参考,本厂支持定制生产加工,电动平板阀也被称为电动插板阀、电液动插板阀等。