15030939339

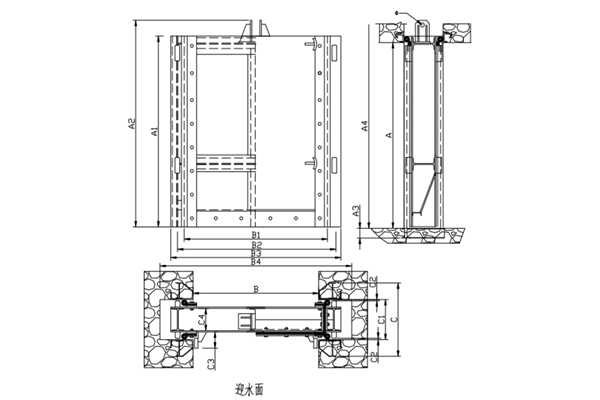
平面滑动钢制闸门HDZ安装布置图及尺寸参数如下,铄洋重工为您免费提供,选购本厂闸门启闭机,工厂免费为您提供实物产品详细安装步骤及教程,同时可选派安装技术人员入驻···
了解详情
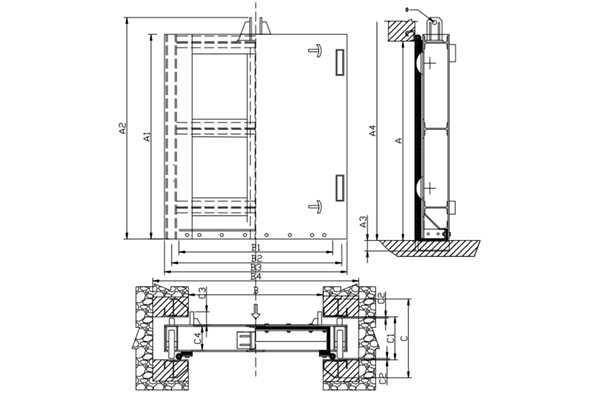
平面滚轮钢制闸门做为水利闸门启闭机设备中重要的组成部分,被广泛应用于排河、进水渠、水电站、水库等水利工程中,那么其正确的安装不容忽视,在此铄洋重工小编以常见型号···
了解详情
不锈钢闸门PZM型采用渠道整体合装结构形式,多以暗杆式、平面加筋型、插板式安装,由启闭机带动丝杆转动,在梯形螺纹作用下使启闭螺母带动门体上下运行,以达到截断或疏···
了解详情
为了方便广大用户能够更好的选型,铄洋重工将从不锈钢闸门常见规格型号的性能参数、结构组件材质性能、外形结构布置图及外形安装尺寸参数(包含预埋件布置尺寸参数)等方面···
了解详情
常见的机闸一体钢制渠道闸门外形结构图、外形及安装尺寸参数如下。一、机闸一体钢制渠道闸门外形结构图由上图不难看出,机闸一体钢制闸门的结构组件优启闭机、丝杆、橡胶密···
了解详情
160-200T弧门卷扬启闭机安装尺寸参数及安装图,机型为QHQII型,基础水平载荷Q水平=cosa*Q,基础水平载荷Q垂直=sina*Q,a为动滑轮**线与水···
了解详情
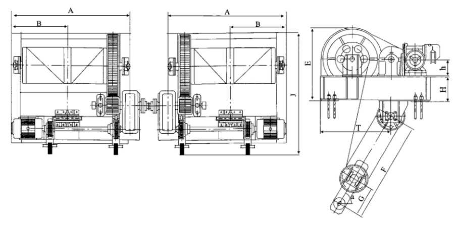
2*63-2*125T弧门卷扬启闭机安装布置尺寸及安装图,基础水平载荷Q水平=cosa*Q,基础水平载荷Q垂直=sina*Q,a为动滑轮**线与水平方向的夹角,···
了解详情
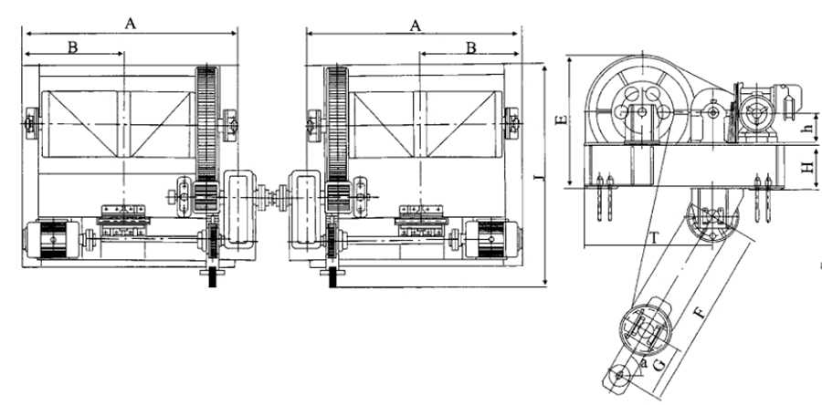
2*16T-2*40T弧门卷扬启闭机的安装布置图及安装尺寸参数如下,下面为您详细介绍的是QPQII型,也就是三支点型,其中基础水平载荷Q水平=cosa*Q,基础···
了解详情
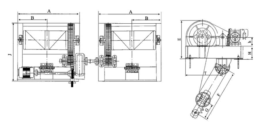
2*5T-2*37.5T弧门卷扬启闭机安装布置图及尺寸参数的详情内容如下。下面介绍的为QHQI型的,也被称为二支点弧门卷扬式启闭机。一、2*5T-2*37.5T···
了解详情