2*5T-2*37.5T弧门卷扬启闭机是用来启闭弧形闸门的启闭设备,启闭扬程10-15米,启门速度1.27-1.92m/min,吊点距离3.5-12米,钢丝绳型号6*37-24.5-1700-光-右交到6*37-47.5-1700-光-右交,电机型号YZ132M-6到YZ225M-8,减速器SJ-650到SJ-1250,制动器TJ2-200到TJ2-300,开式齿轮速比4.65-5.25,滚筒直径500-800mm。

一、特点与用途
1. 构造简单且易于制造,这使得它的维护检修变得相对方便。
2. 适用于各种类型闸门的启闭,尤其是弧形闸门,节省施工成本。但需要注意的是不可启闭绳偏角度过大的弧形闸门。
3. 卷扬启闭机分为单吊点和双吊点两种,其中双吊点卷扬式启闭机是通过连接轴将两个单吊点的启闭机连接在一起进行同步运行,可以做成一边驱动或两边驱动。
4. 启闭机通常是一扇闸门用一台启闭设备,安装在高出闸门槽顶部的闸墩上。
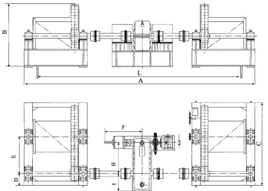
5. 弧形闸门卷扬启闭机由机架、起升机构、电气控制系统组成,其中起升机构主要包括滑轮组、卷筒组、驱动装置(包括形式齿轮副、减速器、制动器、电动机等)及装置等部件。
6. 启闭机通过位于滑轮组动滑轮上的吊具与闸门相连,以启闭闸门。滑轮组的倍率宜采用偶数,以避免因钢丝绳的张图使动滑轮组产生扭转,同时平衡滑轮布置在定滑轮上,可用来操纵荷载限制器。
7.可用来启闭弧形闸门或深孔闸门,需要注意的是不可启闭需要下压力的深孔闸门。
8.按驱动方式分为:8-25T为手摇,电动两用式:40-63T为电动式,全部建议采用双吊点集中驱动。

二、弧门卷扬启闭机与QPQ型卷扬启闭机的不同
1、结构与设计:弧形卷扬启闭机闸门是针对弧形闸门设计的,其结构特点使得它特别适合于弧形闸门的启闭操作。而QPQ型卷扬启闭机则是一种更为通用的卷扬启闭机类型,其设计可以满足不同类型闸门的启闭需求。
2. 应用范围:弧形卷扬启闭机闸门主要应用于弧形闸门的控制,其启闭动作与弧形闸门的特性相匹配。而QPQ型卷扬启闭机则具有更广泛的应用范围,可以应用于多种类型的闸门启闭操作。
3. 性能特点:弧形卷扬启闭机闸门通常具有结构紧凑、启闭平稳、操作简便等特点。而QPQ型卷扬启闭机则可能具有更高的启闭力、更稳定的运行性能以及更好的适应性等特点。
4.卷筒和钢丝绳布置:弧形卷扬启闭机通常具有特殊的卷筒设计,以适应弧形闸门的启闭运动。钢丝绳或链条通过卷筒的旋转来实现闸门的升降。而QPQ卷扬启闭机则可能采用更通用的卷筒和钢丝绳布置方式,以适应不同类型闸门的启闭需求。
5.滑轮组配置:弧形卷扬启闭机可能具有特定的滑轮组配置,以确保弧形闸门在启闭过程中的平稳运动。滑轮组的设计和布置会根据弧形闸门的特性进行优化。而QPQ卷扬启闭机的滑轮组配置可能更为通用,以适应不同类型闸门的启闭要求。
三、2*5T-2*37.5T弧门卷扬启闭机弧门卷扬启闭机型号表示方法

上图种说明的弧门卷扬启闭机的启门高度10.5米,启门力2x37.5T,表示为:QHQ-2x37.5-10.5
四、2*5T-2*37.5T弧门卷扬启闭机的分类
按吊点数量来分,可分为单吊点和双吊点两种机型,按支点数来分,可分为二支点和三支点两种类型。


