2*16-2*40t弧形闸门卷扬启闭机启门力32t-80t,三支点支撑布置,单层缠绕扬程6米-9米,双层缠绕扬程10米-12米,启门速度1.14-1.39m/min,吊点距离2.1-8米,滑轮组倍率4,钢丝绳6×37-13-1700-光-右交、6×19-17-1700-光-右交、6×19-21.5-1700-光-右交,电机功率8.5-12KW,转速943-712rpm,减速器传动比50.94,制动力矩240N·m、500N·m,开式齿轮传动比5.1、5.1、4.75,滚筒直径400mm、400mm、600mm。

一、结构组件
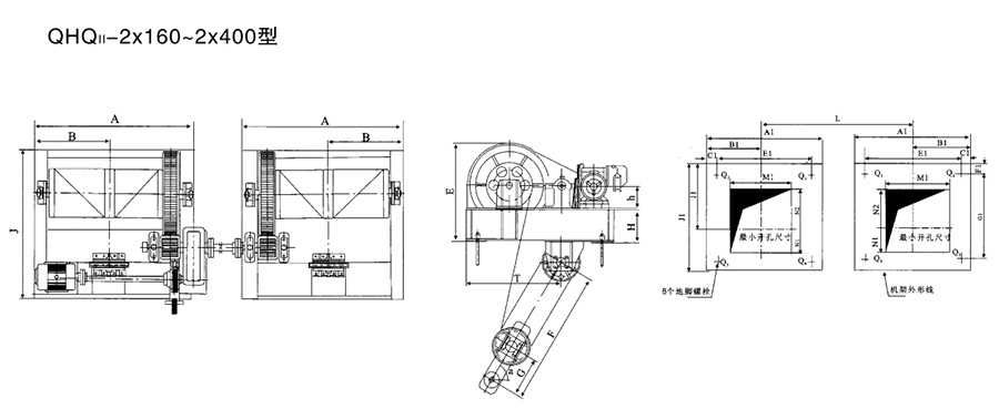
机架、电动机、减速器、制动器、开式齿轮、滚筒、钢丝绳等组件构成。
二、适用场景
启闭闸门重量80t以下表孔弧形闸门。
三、特点
1、运行平稳可靠、噪音小,可实现远程调控、启门力大,扬程高,不可应用于有下压力的闸门。
2、机型结构紧凑,承载能力大,运行平稳可靠,安装维修简便。
3、该机型出厂配有上、下限位装置或机械式高度指示装置。
4、机械式荷载控制装置和内置式手摇机构(400KN以下),另外可按用户要求配置电子荷重指示和开度指示,实现现场和远程控制。

四、选购须知
1、请详细注明型号、规格、工作扬程、安装高度。
2、需要注明吊点距,吊点距大于6米时需要增加中间轴支座。
3、闸门吊耳的外形及动滑轮销轴的连接方式应根据启闭机动滑轮与闸门连接的销轴尺寸来决定。


