63T-125t单吊点卷扬启闭机安装布置图及尺寸参数如下,包含两种机型QPQ型和QPK型。其布置图、基础预埋件布置图及安装尺寸参数表详细内容如下。
一、63-125T单吊点卷扬启闭机安装布置图
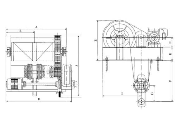
63T-125T 单吊点卷扬启闭机安装布置图涵盖 QPQ 型与 QPK 型两种机型,以水平视角完整呈现设备整体结构布局。图中**标注了电机、卷筒、减速器、制动系统、操作控制台等核心部件的平面位置、各部件间的**距及设备整体轮廓尺寸(长、宽、高的平面投影)。通过该图,安装人员可明确设备在安装场地内的水平占用范围,为前期场地平整、基础划线定位提供关键依据;同时能清晰掌握各部件的装配顺序与平面衔接关系,避免因部件位置偏差导致的装配冲突,确保设备安装后各系统运行协调,满足起吊作业的空间需求。此外,图中还标注了设备与外部辅助设施(如供电接口、检修平台)的对接位置,为后续配套设施安装提供参考。

二、63-125T单吊点卷扬启闭机基础预埋件布置图
该基础预埋件布置图针对 QPQ 型与 QPK 型 63T-125T 单吊点卷扬启闭机的基础安装需求绘制,详细标注了地脚螺栓、预埋钢板、抗剪键、加固钢筋等预埋件的具体参数与安装要求。其中,地脚螺栓的型号、数量、埋设位置、入土深度及外露长度均明确标注,确保螺栓与设备底座的安装孔**匹配;预埋钢板的尺寸、材质及与基础混凝土的锚固方式清晰呈现,保障设备与基础的连接强度;抗剪键的布置位置与尺寸参数则针对设备运行时的水平剪力设计,避免设备在起吊作业中发生水平位移。此外,图中还标注了预埋件的安装偏差允许范围(如位置偏差≤5mm、平面高程偏差≤3mm),指导施工人员规范作业,为设备长期稳定运行奠定坚实的基础支撑。

三、63-125T单吊点卷扬启闭机安装尺寸参数
| 型号 | A(mm) | B(mm) | E(mm) | F(mm) | G(mm) | H(mm) | h(mm) | I(mm) | J(mm) | K(mm) | A1(mm) | B1(mm) | C1(mm) | E1(mm) | F1(mm) | G1(mm) | I1(mm) | J1(mm) | M1(mm) | N1(mm) | Q1(KN) | Q2(KN) | Q3(KN) | Q4(KN) | 地脚螺栓 |
| QPQ-630 | 2442 | 1163 | 1580 | 1450 | 550 | 600 | 325 | 1456 | 2475 | 2767 | 2442 | 1163 | 56 | 2330 | 76 | 2060 | 1456 | 2211 | 1800 | 1050 | 123.8 | 134.12 | 2385 | 225.5 | 4-M30×600 |
| QPQ-800 | 2540 | 1200 | 1645 | 2400 | 600 | 620 | 315 | 1550 | 2569 | 2860 | 2540 | 1200 | 60 | 2420 | 190 | 1955 | 1550 | 2335 | 1700 | 1000 | 154.3 | 172.3 | 333.2 | 277.2 | 4-M36×630 |
| QPQ-2500 | 3155 | 1514 | 1965 | 2800 | 750 | 820 | 315 | 1785 | 2814 | 3475 | 3155 | 1514 | 50 | 3055 | 190 | 2220 | 1785 | 2600 | 2300 | 1100 | 229.3 | 247.3 | 529.2 | 486.2 | 4-M36×630 |
| QPK-630/630 | 2628 | 1260 | 1585 | 2200 | 500 | 620 | 315 | 1430 | 2449 | 3225 | 2628 | 1260 | 50 | 2528 | 158 | 1900 | 1430 | 2215 | 2000 | 1000 | 130 | 141 | 251 | 231 | 4-M36×630 |
| QPK-800/400 | 2540 | 1201 | 1645 | 2400 | 600 | 620 | 315 | 1550 | 2569 | 3160 | 2540 | 1201 | 60 | 2420 | 190 | 1955 | 1550 | 2335 | 1700 | 1000 | 154.3 | 172.3 | 333.2 | 277.2 | 4-M36×630 |
| QPK-1000/500 | 2895 | 1378 | 1875 | 2600 | 660 | 820 | 315 | 1585 | 2604 | 3510 | 2895 | 1378 | 60 | 2775 | 190 | 2010 | 1585 | 2390 | 2000 | 1100 | 193.8 | 213.8 | 413.8 | 373.7 | 4-M36×630 |
| QPK-1250/630 | 3155 | 1514 | 1965 | 2800 | 750 | 820 | 315 | 1785 | 2814 | 3685 | 3155 | 1514 | 50 | 3055 | 190 | 2220 | 1785 | 2600 | 2300 | 1100 | 229.3 | 247.3 | 529.2 | 488.5 | 4-M36×630 |
注:对于 QPK 机型,尺寸 K 包含外伸离心调速器长度,安装时需在调速器一侧预留不小于 300mm 的操作与维护空间,避免影响调速器正常运行;Q1-Q4 为设备不同部位的受力参数(如 Q1 为设备主承载部位荷载、Q3 为基础反力等),安装前需结合基础设计承载力进行校核,确保满足设备运行受力要求。