40T单吊点及双吊点卷扬式启闭机安装布置平面图、剖视图、基础预埋件布置图及安装尺寸参数如下,下图表中涵盖了QPQ型和QPK型两种机型的单吊点及双吊点卷扬启闭机的安装布置图及安装尺寸参数,详细内容如下。
一、40T单吊点卷扬启闭机安装布置图
(一)40T单吊点卷扬启闭机安装布置平面图(QPQ型和QPK型)
该平面图以水平视角呈现 QPQ 型与 QPK 型 40T 单吊点卷扬启闭机的整体布局,清晰标注电机、卷筒、减速器、制动系统等核心部件的平面位置、间距及设备整体轮廓尺寸。通过此图,可明确设备在安装场地内的水平占用范围,为前期场地规划、设备定位放线提供关键依据,确保设备与周边设施(如轨道、操作平台)的衔接空间满足作业需求,同时便于安装人员快速掌握部件组装的平面坐标关系。

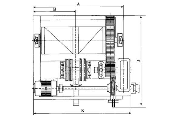
(二)40T单吊点卷扬启闭机剖视布置图(QPQ型和QPK型)
剖视布置图采用垂直剖面视角,深入展示两种机型内部的结构层次与装配细节,包括各部件的竖向安装高度、传动机构(如齿轮啮合)的空间位置、制动装置的安装深度以及设备与基础连接的竖向结构关系。借助该图,安装人员可准确把控部件的竖向安装精度,避免因内部结构错位导致的运行故障,同时为后期设备维护(如部件拆解、故障排查)提供清晰的内部构造参考。

(三)40T单吊点卷扬启闭机基础预埋件安装布置图(QPQ型和QPK型)
此图着重标注两种机型安装所需的地脚螺栓、预埋钢板、加固钢筋等预埋件的型号、数量、埋设位置、入土深度及与基础混凝土的连接要求(如锚固长度、间距偏差范围)。预埋件是设备稳定运行的基础,该图可指导施工人员规范完成预埋件埋设作业,确保预埋件位置准确、固定牢固,避免因预埋件偏移导致设备安装倾斜、运行振动过大等问题,为设备长期安全运行奠定基础。

二、40T双吊点卷扬启闭机安装布置图
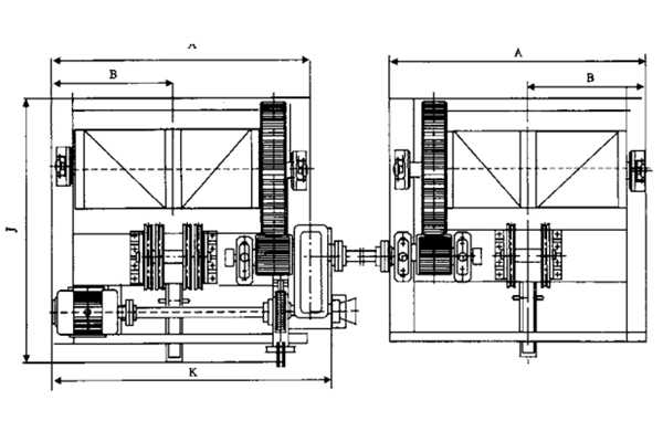
(一)40T双吊点卷扬启闭机平面安装布置图(QPQ型和QPK型)
相较于单吊点机型,双吊点平面图需着重体现两套起升机构的对称布局关系,包括两侧卷筒的**距、同步传动装置的平面位置、双电机的安装间距及操作控制系统的集成位置。图中还标注了设备与闸门连接点的平面坐标,确保双吊点同步提升时闸门受力均衡,同时明确设备整体在场地内的水平分布,为双吊点协同作业的空间规划提供依据。

(二)40T双吊点卷扬启闭机安装布置剖视图(QPQ型和QPK型)
剖视角度聚焦双吊点机型的竖向结构差异,如两侧起升机构的竖向高度一致性、同步减速器的竖向装配关系、双制动系统的上下排布方式等。通过该图可直观查看两套起升机构在竖向空间的配合细节,避免因竖向高度偏差导致的同步性问题,同时明确设备与基础在竖向维度的多层连接结构,保障双吊点运行时的整体稳定性。

(三)40T双吊点卷扬启闭机基础预埋件布置图(QPQ型和QPK型)
因双吊点机型重量更大、受力更复杂,此图需标注更多组预埋件的分布的信息,包括两侧起升机构对应的地脚螺栓组、同步装置专用预埋件的位置及加固结构的预埋要求。图中还明确了预埋件的受力承载标准,确保基础能同时承受两套起升机构的荷载,避免局部应力集中导致基础损坏,同时为预埋件的验收与检测提供清晰的位置与参数依据。

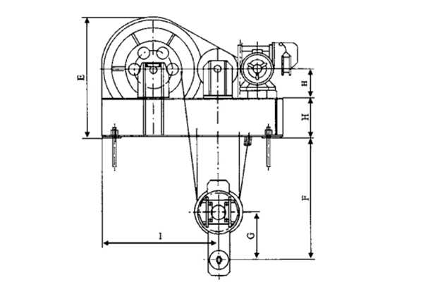
三、40T单吊点卷扬启闭机及40T双吊点卷扬启闭机安装尺寸参数(包含两种机型QPQ型和QPK型)
| 型号 | OPQ/QPK-400/400 | QPQ/QPK-2×400/2×400 | |
| 尺寸(mm) | A | 1682 | 1911 |
| B | 790 | 904 | |
| E | 1373 | 1380 | |
| F | 1200 | 1400 | |
| G | 500 | 500 | |
| H | 500 | 520 | |
| h | 320 | 315 | |
| I | 1254 | 1175 | |
| J | 2273 | 2150 | |
| K | 2081 | 2522 | |
| A1 | 1682 | 1911 | |
| B1 | 790 | 904 | |
| C1 | 180 | 445 | |
| E1 | 1322 | 1821 | |
| F1 | 30 | 155 | |
| G1 | 2000 | 1650 | |
| I1 | 1254 | 1175 | |
| J1 | 2060 | 1960 | |
| M1 | 1300 | 1300 | |
| N1 | 1000 | 1000 | |
| Q1(KN) | 920 | 920 | |
| Q2(KN) | 104.7 | 102 | |
| Q3(KN) | 143 | 151 | |
| Q4(KN) | 124 | 135 | |
| 地脚螺栓 | 4-M30×500 | 4-M30×630 | |
注:1. 对于 QPK 机型,尺寸 K 包含外伸离心调速器长度,安装时需预留调速器操作与维护的额外空间;2. Q1-Q4 为设备不同部位的受力参数,其中 Q1 为主要承载荷载,安装时需结合基础承载力进行校核;3. 双吊点机型的地脚螺栓长度(630mm)长于单吊点机型(500mm),需确保预埋深度满足双吊点的荷载要求。