2*63T-2*125T双吊点卷扬启闭机安装布置图及安装尺寸参数如下。
一、2*63T-2*125T双吊点卷扬启闭机安装布置图
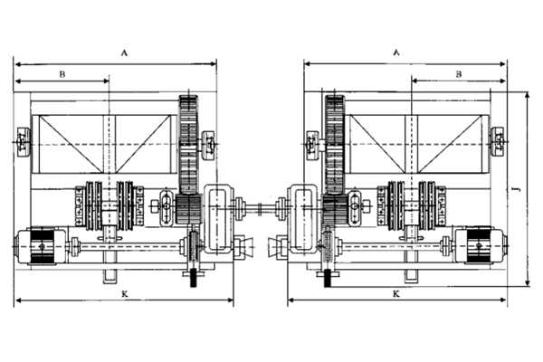
(一)2×63T-2×125T 双吊点卷扬启闭机平面安装布置图
该平面安装布置图涵盖 QPQ 型与 QPK 型两种机型,以水平视角完整呈现双吊点卷扬启闭机的整体结构布局。与单吊点机型不同,图中**标注了两套对称设置的起升机构(含电机、卷筒、减速器)的平面位置、**间距,以及同步传动装置、双制动系统的安装坐标。同时,明确了设备整体的轮廓尺寸(长、宽)及与闸门连接的两个吊点的相对位置,确保双吊点在起吊作业中能同步发力,避免闸门倾斜。此外,图中还标注了操作控制台、供电接口、检修通道的平面位置,为安装人员规划场地、定位放线提供**依据,保障设备安装后与周边辅助设施的衔接协调。

(二)2*63-2*125T双吊点卷扬启闭机安装布置剖视图
剖视图采用垂直剖面视角,深入展示双吊点卷扬启闭机的竖向结构细节。图中清晰呈现了两套起升机构的竖向安装高度、齿轮啮合的竖向间隙、制动装置的竖向装配关系,以及同步减速器的竖向定位尺寸,确保双吊点在竖向维度的运行同步性。同时,标注了设备底座与基础连接的竖向节点结构,包括支撑部件的高度、预埋件的竖向嵌入深度等关键参数,为安装人员把控竖向安装精度、避免因高度偏差导致的同步故障提供参考,帮助安装人员更直观理解复杂部件的装配关系。

二、2*63T-2*125T双吊点卷扬启闭机基础预埋件安装布置图
该基础预埋件安装布置图针对双吊点机型荷载更大、受力更复杂的特点绘制,详细标注了地脚螺栓、预埋钢板、抗剪键、加固钢筋等预埋件的具体参数与安装要求。其中,地脚螺栓采用 8 组对称布置(区别于单吊点的 4 组),图中明确标注了每组螺栓的型号、埋设位置、入土深度及外露长度,确保螺栓能均匀承载设备重量,避免局部应力集中;预埋钢板的尺寸、材质及与基础混凝土的锚固方式清晰呈现,且针对双吊点的同步运行需求,标注了钢板平面的平整度允许偏差(≤2mm/m);抗剪键则对应两套起升机构的位置分别布置,明确其尺寸与安装深度,有效抵御设备运行时产生的水平剪力,防止设备水平位移。此外,图中还标注了预埋件的安装偏差范围(位置偏差≤5mm、高程偏差≤3mm),指导施工人员规范作业,为设备长期稳定运行奠定坚实基础。

三、2*63T-2*125T双吊点卷扬启闭机安装尺寸参数
| 型号 | QPQ-2×630 | QPQ-2×800 | QPQ-2×1000 | QPQ-2×1250 | QPK-2×630/2×300 | QPK-2×800/2×400 | QPK-2×1000/2×500 | QPK-2×1250/2×300 | |
| 尺寸(mm) | A | 2442 | 2540 | 2895 | 3155 | 2628 | 2540 | 2895 | 3155 |
| B | 1163 | 1200 | 1378 | 1514 | 1260 | 1201 | 1378 | 1514 | |
| E | 1580 | 1645 | 1875 | 1965 | 1585 | 1645 | 1875 | 1965 | |
| F | 1450 | 2400 | 2600 | 2800 | 2200 | 2400 | 2600 | 2800 | |
| G | 550 | 600 | 660 | 750 | 500 | 600 | 660 | 750 | |
| H | 600 | 620 | 820 | 820 | 620 | 620 | 820 | 820 | |
| h | 325 | 315 | 315 | 315 | 315 | 315 | 315 | 315 | |
| I | 1456 | 1550 | 1585 | 1785 | 1430 | 1550 | 1585 | 1785 | |
| J | 2475 | 2569 | 2604 | 2814 | 2449 | 2569 | 2604 | 2814 | |
| K | 2767 | 2860 | 3215 | 3475 | 3225 | 3160 | 3510 | 3685 | |
| A1 | 2442 | 2540 | 2895 | 3155 | 2628 | 2540 | 2895 | 3155 | |
| B1 | 1163 | 1200 | 1378 | 1514 | 1260 | 1201 | 1378 | 1514 | |
| C1 | 56 | 60 | 60 | 50 | 50 | 60 | 60 | 50 | |
| E1 | 2330 | 2420 | 2775 | 3055 | 2528 | 2420 | 2775 | 3055 | |
| F1 | 76 | 190 | 190 | 190 | 158 | 190 | 190 | 190 | |
| G1 | 2060 | 1955 | 2010 | 2220 | 1900 | 1955 | 2010 | 2220 | |
| I1 | 1456 | 1550 | 1585 | 1785 | 1430 | 1550 | 1585 | 1785 | |
| J1 | 2211 | 2335 | 2390 | 2600 | 2215 | 2335 | 2390 | 2600 | |
| M1 | 1800 | 1700 | 2000 | 2300 | 2000 | 1700 | 2000 | 2300 | |
| N1 | 1050 | 1000 | 1100 | 1100 | 1000 | 1000 | 1100 | 1100 | |
| Q1(KN) | 123.8 | 154.3 | 193.8 | 229.3 | 130 | 154.3 | 193.8 | 229.3 | |
| Q2(KN) | 134.12 | 172.3 | 213.8 | 247.3 | 141 | 172.3 | 213.8 | 247.3 | |
| Q3(KN) | 238.5 | 333.2 | 413.7 | 529.2 | 251 | 333.2 | 413.8 | 529.2 | |
| Q4(KN) | 225.5 | 277.2 | 373.7 | 486.2 | 231 | 277.2 | 373.7 | 488.5 | |
| 地脚螺栓 | 8-M30×600 | 8-M36×630 | 8-M36×630 | 8-M36×630 | 8-M36×630 | 8-M36×630 | 8-M36×630 | 8-M36×630 | |
注:1. 对于 QPK 机型,尺寸 K 包含外伸离心调速器长度,安装时需在调速器一侧预留不小于 300mm 的操作与维护空间,且因双吊点机型整体尺寸更大,需额外检查调速器与另一侧起升机构的间距,避免干涉;2. 地脚螺栓均采用 8 组布置,安装时需按对称顺序分次紧固(紧固力矩需符合螺栓型号要求,如 M30 螺栓力矩约为 600-700N・m),确保螺栓受力均匀;3. Q1-Q4 为设备不同部位的受力参数(Q1 为主承载荷载、Q2 为运行荷载、Q3 为基础反力、Q4 为制动荷载),安装前需结合基础设计承载力、闸门重量进行综合校核,确保满足双吊点同步运行的受力要求。