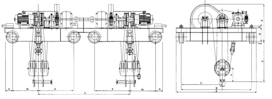
2x40T-2x100T移动式卷扬启闭机动滑轮外形和连接尺寸与相同规格的QPQ型启闭机一致,轨距尺寸仅供参考,由水工设计选定。表中尺寸C相对B为对中式,如需不对中,由用户提供尺寸。夹轨器、缓冲器和供电方式根据用户需要配套。需选用单吊点台车启闭机,本公司另行提供图纸。下表中包含了移动式卷扬启闭机的启门力、扬程、吊点距、起升机构、行走机构、车轮直径、钢轨型号及外形尺寸参数等内容。
一、2x40T-2x100T移动式卷扬启闭机外形结构图

二、2x40T-2x100T移动式卷扬启闭机技术参数表
| 型号 | QPT-2×400 | QPT-2×630 | QPT-2×800 | QPT-2×1000 | |
| 启门力(KN) | 2×400 | 2×630 | 2×800 | 2×1000 | |
| 启门扬程(m) | 13 | 16 | 16 | 16 | |
| 吊点**距(m) | 3.1~10 | 4~11 | 4.1-12 | 4.4-12.5 | |
| 起升机构 | 起升速度(m/min) | 1.39 | 1.23 | 1.47 | 1.4 |
| 电机型号及功率 | YZ225M-8/22KW | YZ200L-8/2×15KW | YZ225M-8/2×22KW | YZ250M-8/2×30KW | |
| 行走机构 | 行走速度(m/min) | 14 | 12 | 10 | 8 |
| 电机功率 | 2×2.2KW | 2×3KW | 4×2.2KW | 4×3KW | |
| 车轮直径(m) | 400 | 500 | 600 | 700 | |
| 建议钢轨型号 | P43 | QU70 | QU100 | QU100 | |
| 基本尺寸(mm) | A | 3060 | 3560 | 3860 | 4320 |
| B | 2700 | 3100 | 3400 | 3800 | |
| C | 1350 | 1550 | 1700 | 1900 | |
| E | 1623 | 1730 | 1875 | 1956 | |
| F | 1200 | 1450 | 2400 | 2600 | |
| G | 500 | 550 | 600 | 660 | |
| H | 600 | 750 | 850 | 900 | |
| J | 60 | 60 | 70 | 80 | |
| M | 1250 | 1620 | 1850 | 2000 | |
| N | 250 | 300 | 350 | 400 | |
| Y | 115 | 140 | 140 | 140 | |
| P | 1350 | 1750 | 1900 | 2200 | |