2×5T-2×37.5T 弧门卷扬启闭机(QHQI 系列)属于轻型卷扬设备,主打 “轻量化、小扬程、易安装” 优势,广泛用于小型水库溢洪道、灌溉渠节制闸、城市景观河道弧形闸门等场景。结合我参与的 10 余个小型水利项目经验,现将该系列启闭机的技术性能参数、外形尺寸参数优化整理,并补充结构图说明与选型要点,为工程安装与采购提供实操参考。
2*5T-2*37.5T弧门卷扬启闭机技术性能参数、外形结构图及外形尺寸参数如下。
一、2*5T-2*37.5T弧门卷扬启闭机技术性能参数
| 启闭机型号 | QHQI-2×50 | QHQI-2×75 | QHQI-2×100 | QHQI-2×150 | QHQI-2×250 | QHQI-2×375 | |
| 启门力(KN) | 2×50 | 2×75 | 2×100 | 2×150 | 2×250 | 2×375 | |
| 启门扬程(m) | 10 | 10 | 10 | 10 | 15 | 15 | |
| 启门速度(m/min) | 1.27 | 1.33 | 1.74 | 1.92 | 1.49 | 1.35 | |
| 吊点**距(m) | 3.5-8 | 3.5-8 | 4-9 | 5-10 | 5.5-12 | 5.5-12 | |
| 钢丝绳型号GB1102-74 | 6×37-24.5-1700-光-右交 | 6×37-28-1850-光-右交 | 6×37-34.5-1700-光-右交 | 6×37-39-1700-光-右交 | 6×37-47.5-1700-光-右交 | 6×37-43-1700-光-右交 | |
| 电动机 | 型号 | YZ132M2-6 | YZ160M1-6 | YZ160M2-6 | YZ160L-6 | YZ180L-8 | YZ225M-8 |
| 功率KW | 4 | 5.5 | 7.5 | 11 | 11 | 22 | |
| 转速(rpm) | 915 | 933 | 948 | 953 | 694 | 712 | |
| 减速器 | 型号 | SJ-650 | SJ-650 | SJ-800 | SJ-1000 | SJ-1000 | SJ-1250 |
| 传动比 | 249 | 249 | 274 | 274 | 322 | 252 | |
| 制动器 | 型号 | TJ2-200 | TJ2-200 | TJ2-200 | TJ2-300 | TJ2-300 | TJ2-300 |
| 制动力矩(N·m) | 160 | 160 | 160 | 500 | 500 | 500 | |
| 开式齿轮速比 | 4.65 | 5.3 | 4.375 | 4.56 | 4.56 | 5.25 | |
| 滚筒直径(mm) | 500 | 600 | 700 | 800 | 1000 | 800 | |
参数关键说明
启门扬程适配:前 4 个型号(QHQI-2×50~2×150)扬程均为 10m,适合闸门行程≤10m 的场景;后 2 个型号(2×250~2×375)扬程 15m,适配长行程闸门,如小型水电站尾水闸;
钢丝绳选型逻辑:全系采用 6×37 结构(柔性好、耐疲劳),直径从 24.5mm 增至 47.5mm,与启门力成正比,避免小直径钢丝绳过载断裂;
制动器匹配:启门力≤100KN 的型号用 TJ2-200 制动器(制动力矩 160N・m),≥150KN 的型号升级为 TJ2-300(500N・m),确保制动安全。
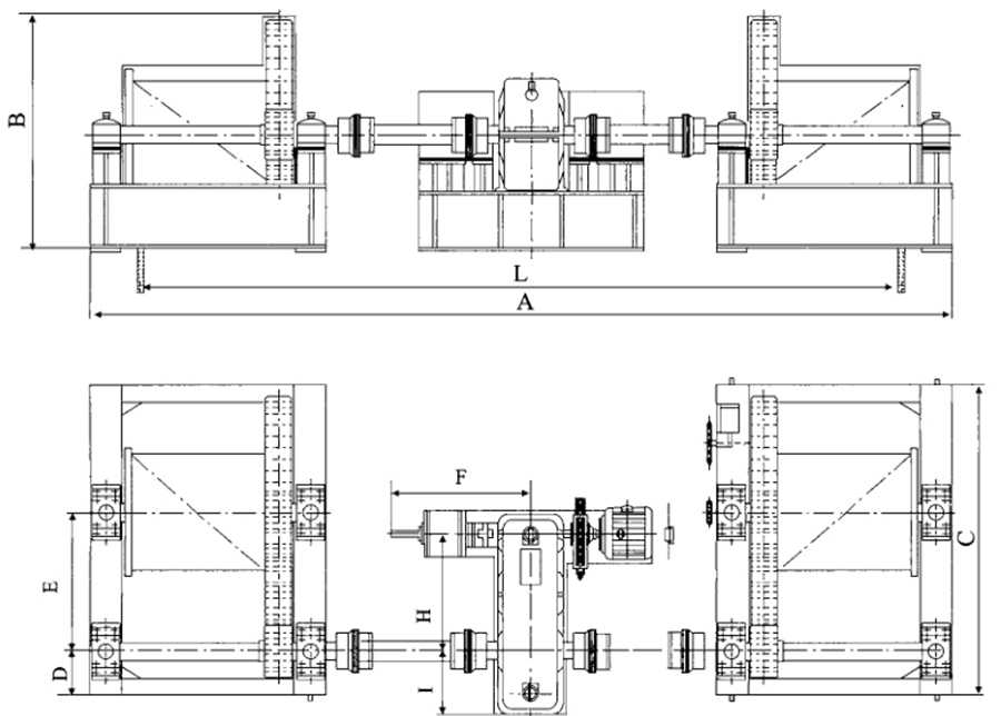
二、2*5T-2*37.5T弧门卷扬启闭机外形结构图
该系列启闭机为二机架式对称结构,核心组成与外形特征如下(结合行业通用结构补充说明,便于理解尺寸参数):
核心部件布局:左右对称设置 2 个机架(支撑滚筒与减速器),中部为滚筒组件(含开式齿轮),电动机与制动器安装于机架一侧,减速器通过联轴器连接滚筒,整体结构紧凑,占地面积小;
关键尺寸标注:图中需**关注 “吊点**距 L”(机架外侧至滚筒**的距离,对应尺寸参数表中的 L 值)、“总宽度 B”(两机架外侧间距)、“总高度 H”(机架底部至滚筒顶部距离),这三个尺寸直接影响安装场地规划;
安装适配提示:结构图中需预留 “地脚螺栓孔位置”(对应尺寸参数表中的 C、D 值),螺栓孔间距需与闸室混凝土基础预埋螺栓匹配,避免安装时打孔返工(我在安徽某灌溉渠项目中,曾因未核对螺栓孔间距,多耗费 2 天调整基础)。

三、2*5T-2*37.5T弧门卷扬启闭机外形尺寸参数
(注:尺寸单位均为 mm,A 值中 “L” 即吊点**距,需根据实际选用的 L 值计算具体尺寸,如 QHQI-2×50 选用 L=5m,则 A=5000+385=5385mm)
| 启闭式型号 | QHQI-2×50 | QHQI-2×75 | QHQI-2×100 | QHQI-2×150 | QHQI-2×250 | QHQI-2×375 | |
| 外形尺寸(mm) | B | 926 | 1000 | 1080 | 1430 | 1800 | 2000 |
| A | L+385 | L+562 | L+446 | L+580 | L+678 | L+1750 | |
| L(吊点**距m) | 3.5~8 | 3.5~8 | 4~9 | 5~10 | 5.5~12 | 5.5~12 | |
| K | 458 | 550 | 580 | 780 | 900 | 960 | |
| E | 500 | 606 | 559 | 800 | 1000 | 1100 | |
| F | 1138 | 1128 | 1228 | 1261 | 1274 | 1362 | |
| C | 1240 | 1550 | 1550 | 2100 | 2295 | 2450 | |
| D | 180 | 322 | 450 | 500 | 310 | 310 | |
| H | 650 | 650 | 800 | 1000 | 1000 | 1250 | |
| I | 335 | 335 | 445 | 540 | 540 | 660 | |
尺寸应用要点
安装场地规划:总长度 A 需预留 “L + 附加值 + 100mm” 的操作空间(如 QHQI-2×375 选 L=8m,A=8000+1750=9750mm,场地长度需≥9850mm);
基础承重适配:总宽度 B 与地脚螺栓孔间距 C 决定基础尺寸,如 QHQI-2×250 基础宽度需≥1800mm,螺栓孔间距 2295mm 需与预埋螺栓**对齐;
高度适配:总高度 H 需结合闸室顶部空间,如 QHQI-2×375 总高 1250mm,闸室顶部至地面距离需≥1500mm(预留检修空间)。
四、选型与安装实战建议
1. 选型 3 个核心原则
按启门力留余量:弧形闸门计算启门力需加 10% 余量,如计算启门力 90KN,选 QHQI-2×100(2×100KN),避免过载;
尺寸匹配闸室:优先按 “吊点**距 L” 选型,如闸室吊点间距 6m,可选 L=3.5~8m 的 QHQI-2×75,再核对 A、B 尺寸是否适配场地;
环境适配电机:潮湿环境(如水库闸门)建议将 YZ 系列电机升级为 YZR 系列(绕线转子电机),提高防潮性能。
2. 安装避坑技巧
尺寸复核:安装前用卷尺实测闸室基础的螺栓孔间距、高度,与参数表对比,偏差超 5mm 需调整基础;
滚筒水平校准:滚筒安装后用水平仪检测,水平偏差≤0.1mm/m,避免钢丝绳跑偏磨损;
试运转测试:安装后空载试运行 3 次,检查启门速度与参数表偏差是否≤±10%,制动器制动无滑移即可。
五、执行标准与验收
该系列启闭机需符合:
GB/T 10597.1-2017《卷扬式启闭机 第 1 部分:技术条件》;
SL 74-2013《水利水电工程金属结构通用技术条件》;
验收**:启门力偏差≤±5%、尺寸偏差≤±3mm、制动器连续 3 次制动无滑移。
总结:2×5T-2×37.5T 弧门卷扬启闭机选型需 “先看启门力与扬程,再核尺寸适配场地”,尤其小型项目场地有限,尺寸参数比性能参数更影响安装效率。若你有具体项目的闸室尺寸、闸门重量等信息,可提供细节,我结合实战经验帮你**匹配型号,避免选型与安装脱节。