5-25T固定式卷扬启闭机有两种一种为QPQ型另外一种为QPK型,为了方便广大用户更好的理解,铄洋重工将从其平面布置图、剖视布置图、基础预埋件布置图及对应规格型号的布置尺寸参数等方面为您详细说明
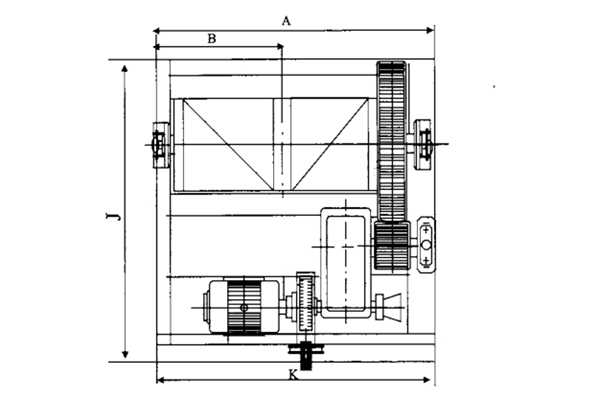
一、5-25T固定式卷扬启闭机平面布置图
5-25T 固定式卷扬启闭机平面布置图主要用于展示设备在水平方向上的整体布局,包括电机、卷筒、减速器等核心部件的相对位置、安装间距以及设备与周边辅助设施的衔接关系。通过该图,用户可清晰掌握设备在安装场地内的平面占用范围,为前期场地规划、设备定位放线提供关键依据,确保设备安装后各部件运行协调,满足整体作业空间需求。

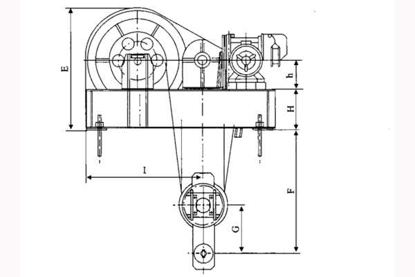
二、5-25T固定式卷扬启闭机剖视布置图
5-25T 固定式卷扬启闭机剖视布置图以垂直或特定角度的剖面视角,呈现设备内部的结构层次与装配关系,涵盖各部件的安装高度、传动机构的啮合方式、制动系统的安装位置以及设备与基础连接的竖向结构细节。该图可帮助安装人员深入了解设备内部构造,准确把控各部件的竖向安装精度,避免因内部结构装配不当导致的运行故障,同时为设备后期维护、部件检修提供清晰的内部结构参考。

三、5-25固定式卷扬启闭机基础预埋件布置图
5-25T 固定式卷扬启闭机基础预埋件布置图详细标注了设备安装所需的地脚螺栓、预埋钢板、加固钢筋等预埋件的型号、数量、安装位置、埋设深度以及与基础混凝土结构的连接要求。预埋件是设备稳定运行的基础保障,该图可指导施工人员规范完成预埋件的埋设作业,确保预埋件位置准确、固定牢固,避免因预埋件偏差导致设备安装倾斜、运行振动过大等问题,为设备长期安全运行奠定坚实基础。

四、5-25T固定式卷扬启闭机布置尺寸参数
| 型号 | QPQ-50 | QPQ-80 | QPQ-125 | QPQ-160 | QPQ-250 | QPK-60/60 | QPK-100/100 | QPK-160/160 | QPK-250/250 | |||
| 尺寸(mm) | A | 989 | 1132 | 1258 | 1308 | 1486 | 1130 | 1130 | 1350 | 1520 | ||
| B | 465 | 535.5 | 594 | 617 | 696 | 535 | 535 | 638 | 720 | |||
| E | 810 | 845 | 970 | 1070 | 1265 | 855 | 855 | 1080 | 1200 | |||
| F | 950 | 1000 | 1000 | 1200 | 1200 | 950 | 1100 | 1200 | 1300 | |||
| G | 290 | 310 | 350 | 380 | 460 | 290 | 310 | 380 | 460 | |||
| H | 250 | 275 | 300 | 350 | 400 | 285 | 285 | 360 | 390 | |||
| h | 180 | 180 | 225 | 250 | 280 | 190 | 190 | 240 | 265 | |||
| I | 712 | 740 | 884 | 990 | 1090 | 682 | 703 | 916 | 1050 | |||
| J | 1473 | 1473 | 1743 | 1772 | 2037 | 1580 | 1580 | 1768 | 2075 | |||
| K | 1220 | 1220 | 1340 | 1538 | 1766 | 1483 | 1488 | 1705 | 1918 | |||
| A1 | 989 | 1132 | 1258 | 1308 | 1486 | 1130 | 1130 | 1350 | 1520 | |||
| B1 | 465 | 536 | 594 | 617 | 696 | 535 | 535 | 638 | 720 | |||
| C1 | 110 | 125 | 140 | 125 | 130 | 125 | 125 | 150 | 140 | |||
| E1 | 769 | 882 | 978 | 1258 | 1226 | 880 | 880 | 1050 | 1240 | |||
| F1 | 25 | 30 | 30 | 30 | 35 | 30 | 30 | 30 | 35 | |||
| G1 | 1155 | 1180 | 1455 | 1414 | 1825 | 1200 | 1200 | 1485 | 1730 | |||
| I1 | 712 | 740 | 884 | 990 | 1090 | 682 | 703 | 916 | 1050 | |||
| J1 | 1205 | 1240 | 1515 | 1674 | 1895 | 1260 | 1260 | 1545 | 1800 | |||
| M1 | 620 | 700 | 860 | 890 | 950 | 700 | 700 | 800 | 900 | |||
| N1 | 500 | 550 | 650 | 700 | 800 | 500 | 500 | 600 | 700 | |||
| Q1(KN) | 11.23 | 17.3 | 28.2 | 36.5 | 57.8 | 15.4 | 25 | 37.2 | 60 | |||
| Q2(KN) | 12.79 | 19.46 | 33.8 | 39.2 | 65.8 | 19.25 | 32 | 41.3 | 65.3 | |||
| Q3(KN) | 17.86 | 28.17 | 46.31 | 58.5 | 85.9 | 20.34 | 35 | 60.5 | 92.2 | |||
| Q4(KN) | 15.6 | 24.83 | 40.7 | 52.8 | 74.28 | 22.2 | 37 | 54.5 | 84 | |||
| 地脚螺栓 | 4-M20×400 | 4-M20×400 | 4-M24×500 | 4-M24×500 | 4-M24×500 | 4-M20×400 | 4-M20×400 | 4-M24×500 | 4-M24×500 | |||
注:1. 表中尺寸参数为设备标准安装尺寸,实际安装时需结合现场工况、基础结构进行微调;2. Q1-Q4 为设备不同部位的受力参数,仅供安装强度校核参考;3. 地脚螺栓需严格按照型号要求选用,安装后需进行力矩紧固,确保设备固定可靠。