人字闸一字闸集成液压启闭机用于市政、湿地公园、内河航道的人字门或一字门的启、闭。它具有技术先进、结构紧凑、经济性好、安全可靠、维护简单、安装方便等优点。人字门和一字门单向止水,平水或水位差不大时启闭闸门。其安装尺寸参数及安装结构图
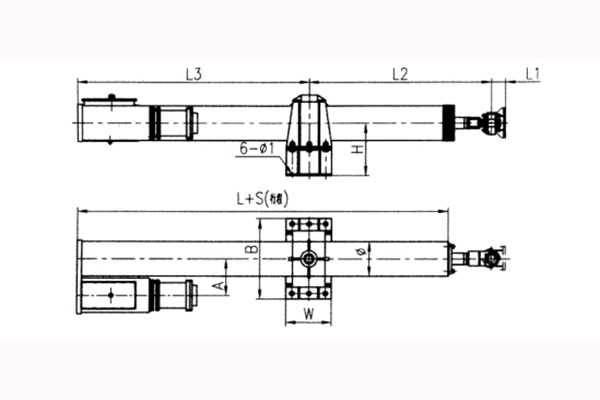
一、人字闸一字闸集成液压启闭机安装尺寸参数

人字闸一字闸集成液压启闭机安装尺寸参数表一
| 启闭机型号 | L | L1 | L2 | L3 | L4 | H | B | W | Φ | Φ1 |
| DYZQ-RY63kN-S-A | 320 | 80 | 根据 具体 工程 布置 确定 | 1200 | 行程大 于4m 时,需 加深轮 支撑 | 360 | 800 | 400 | 299 | 19 |
| DYZQ-RY100kN-S-A | 340 | 90 | 1250 | 380 | 800 | 420 | 351 | 23 | ||
| DYZQ-RY150kN-S-A | 400 | 100 | 1300 | 400 | 820 | 450 | 351 | 27 | ||
| DYZQ-RY200kN-S-A | 450 | 120 | 1350 | 450 | 850 | 480 | 377 | 33 | ||
| DYZQ-RY250kN-S-A | 500 | 140 | 1400 | 500 | 870 | 500 | 377 | 36 | ||
| DYZQ-RY320kN-S-A | 550 | 160 | 1450 | 550 | 900 | 550 | 426 | 40 | ||
| DYZQ-RY400kN-S-A | 600 | 180 | 1480 | 600 | 950 | 570 | 500 | 45 | ||
| DYZQ-RY500kN-S-A | 650 | 200 | 1500 | 650 | 1000 | 600 | 560 | 45 |

人字闸一字闸集成液压启闭机安装布置尺寸参数表二
| 启闭机型号 | L | L1 | L2 | A | H | B | W | Φ | Φ1 |
| DYZQ-RY63kN-S-B | 320 | 80 | 根据具体工 程布置确定 | 330 | 360 | 800 | 400 | 299 | 19 |
| DYZQ-RY100kN-S-B | 340 | 90 | 380 | 380 | 800 | 420 | 351 | 23 | |
| DYZQ-RY150kN-S-B | 400 | 100 | 380 | 400 | 820 | 450 | 351 | 27 | |
| DYZQ-RY200kN-S-B | 450 | 120 | 400 | 450 | 850 | 480 | 377 | 33 | |
| DYZQ-RY250kN-S-B | 500 | 140 | 400 | 500 | 870 | 500 | 377 | 36 | |
| DYZQ-RY320kN-S-B | 550 | 160 | 450 | 550 | 900 | 550 | 426 | 40 | |
| DYZQ-RY400kN-S-B | 600 | 180 | 530 | 600 | 950 | 570 | 500 | 45 | |
| DYZQ-RY500kN-S-B | 650 | 200 | 580 | 650 | 1000 | 600 | 560 | 45 |
二、人字闸一字闸集成液压启闭机安装结构示意图
人字闸门一字闸门安装布置示意图

双一字闸门安装示意图
