倾倒式闸门集成液压启闭机适用于挡水或调节水位景观水利工程,它具有结构简单、有过载保护及预警功能,易于安装和维护的特点,采用双吊点同步布置。
一、倾倒式闸门集成液压启闭机安装尺寸参数
倾倒式闸门集成液压启闭机安装尺寸参数一
| 启闭机型号 | L | L1 | H | B | H1 | R | Φ | Φ1 |
| DYZQ-QD63kN-S-A | 250 | 根据具体 水工布置 及闸门高 度确定 | 325 | 75 | 60 | 60 | 299 | 50 |
| DYZQ-QD100kN-S-A | 300 | 350 | 85 | 60 | 65 | 325 | 55 | |
| DYZQ-QD150kN-S-A | 400 | 380 | 95 | 70 | 80 | 351 | 60 | |
| DYZQ-QD200kN-S-A | 430 | 380 | 105 | 80 | 90 | 351 | 70 | |
| DYZQ-QD250kN-S-A | 450 | 400 | 115 | 80 | 100 | 377 | 80 | |
| DYZQ-QD320kN-S-A | 500 | 400 | 125 | 90 | 110 | 402 | 100 | |
| DYZQ-QD400kN-S-A | 550 | 450 | 135 | 100 | 120 | 426 | 110 | |
| DYZQ-QD500kN-S-A | 600 | 480 | 145 | 110 | 125 | 450 | 120 | |
| DYZQ-QD600kN-S-A | 650 | 525 | 155 | 110 | 135 | 500 | 130 |
注:表中S为设计行程
倾倒式闸门集成液压启闭机安装及外形结构图一

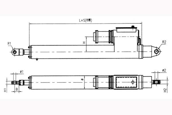
倾倒式闸门集成液压启闭机安装尺寸参数二
| 启闭机型号 | L | H | H1 | H2 | B | R1 | R2 | Φ | Φ1 | Φ2 |
| DYZQ-QD63kN-S-B | 250 | 325 | 60 | 60 | 75 | 60 | 60 | 299 | 50 | 50 |
| DYZQ-QD100kN-S-B | 300 | 350 | 60 | 60 | 85 | 65 | 65 | 325 | 55 | 55 |
| DYZQ-QD150kN-S-B | 400 | 380 | 70 | 70 | 95 | 80 | 80 | 351 | 60 | 60 |
| DYZQ-QD200kN-S-B | 430 | 380 | 80 | 80 | 105 | 90 | 90 | 351 | 70 | 70 |
| DYZQ-QD250kN-S-B | 450 | 400 | 80 | 80 | 115 | 100 | 100 | 377 | 80 | 80 |
| DYZQ-QD320kN-S-B | 500 | 400 | 90 | 90 | 125 | 110 | 110 | 402 | 100 | 100 |
| DYZQ-QD400kN-S-B | 550 | 450 | 100 | 100 | 135 | 120 | 120 | 426 | 110 | 110 |
| DYZQ-QD500kN-S-B | 600 | 480 | 110 | 110 | 145 | 125 | 125 | 450 | 120 | 120 |
| DYZQ-QD600kN-S-B | 650 | 525 | 120 | 120 | 155 | 130 | 135 | 500 | 130 | 130 |
注:表中S为设计行程
倾倒式闸门集成液压启闭机安装及外形结构图二

二、倾倒式闸门集成液压启闭机安装示意图

