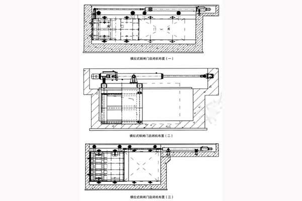
横拉门用电液一体启闭机具有结构紧凑,操作简单、平稳,隐蔽性较好等特点,特别适用于市政水利景观工程。需要注意的是当孔口宽度2-8m用单台启闭机,孔口宽度8-16m用两台对拉布置。下面是横拉门安装布置外形尺寸参数表及安装布置图
一、横拉门用电液一体启闭机安装外形尺寸参数

| 液压启闭机型号 | L | H | H1 | H2 | B | R1 | R2 | Φ | Φ1 | Φ2 |
| DYZQ-HL63kN-S | 250 | 325 | 60 | 60 | 75 | 60 | 60 | 299 | 50 | 50 |
| DYZQ-HL100kN-S | 300 | 350 | 60 | 60 | 85 | 65 | 65 | 325 | 55 | 55 |
| DYZQ-HL150kN-S | 400 | 380 | 70 | 70 | 95 | 82 | 82 | 351 | 60 | 60 |
| DYZQ-HL200kN-S | 430 | 380 | 80 | 80 | 105 | 90 | 90 | 351 | 70 | 70 |
| DYZQ-HL250kN-S | 450 | 400 | 80 | 80 | 115 | 100 | 100 | 377 | 80 | 80 |
| DYZQ-HL320kN-S | 500 | 400 | 90 | 90 | 125 | 110 | 110 | 402 | 100 | 100 |
| DYZQ-HL400kN-S | 550 | 450 | 100 | 100 | 135 | 120 | 120 | 426 | 110 | 110 |
| DYZQ-HL500kN-S | 600 | 480 | 110 | 110 | 145 | 125 | 125 | 450 | 120 | 120 |
二、横拉门用电液一体启闭机安装布置图
