2*5T-2*25T双吊点卷扬启闭机安装布置尺寸图及参数如下,铄洋重工为了让广发朋友能更好的理解,将从其安装布置平面图、安装布置剖视图、基础预埋件布置图及安装型号尺寸参数等方面说明,下表中包含了两种机型,分别式QPQ型和QPK型,从对应的型号规格可直接查阅相应的布置尺寸。
一、2*5T-2*25T双吊点卷扬启闭机安装布置平面图

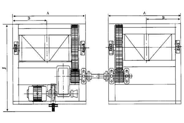
二、2*5T-2*25T双吊点卷扬启闭机安装布置剖视图

三、2*5T-2*25T双吊点卷扬启闭机基础预埋件布置图

| 型号 | QPQ-2×50 | QPQ-2×80 | QPQ-2×125 | QPQ-2×160 | QPQ-2×250 | QPK-2×62×60 | QPK-2×1002×100 | QPK-2×162×160 | QPK-2×2502×250 | ||
| 尺寸(mm) | A | 989 | 1132 | 1258 | 1308 | 1486 | 1130 | 1130 | 1350 | 1520 | |
| B | 465 | 535.5 | 594 | 617 | 696 | 535 | 535 | 638 | 720 | ||
| E | 810 | 845 | 970 | 1070 | 1265 | 855 | 855 | 1080 | 1200 | ||
| F | 950 | 1000 | 1000 | 1200 | 1200 | 90 | 1100 | 1200 | 1300 | ||
| G | 290 | 310 | 350 | 380 | 460 | 290 | 310 | 330 | 460 | ||
| H | 250 | 275 | 300 | 350 | 400 | 285 | 285 | 360 | 390 | ||
| h | 180 | 180 | 225 | 250 | 280 | 190 | 190 | 240 | 265 | ||
| I | 712 | 740 | 884 | 990 | 1090 | 682 | 703 | 916 | 1050 | ||
| J | 1473 | 1473 | 1743 | 1772 | 2037 | 1580 | 1580 | 1768 | 2075 | ||
| K | 1220 | 1220 | 1340 | 1538 | 1766 | 1483 | 1488 | 1705 | 1918 | ||
| A1 | 989 | 1132 | 1258 | 1308 | 1486 | 1130 | 1130 | 1350 | 1520 | ||
| B1 | 465 | 536 | 594 | 617 | 696 | 535 | 535 | 638 | 720 | ||
| C1 | 110 | 125 | 140 | 125 | 130 | 1125 | 125 | 150 | 140 | ||
| E1 | 769 | 882 | 978 | 1258 | 1226 | 880 | 880 | 1050 | 1240 | ||
| F1 | 25 | 30 | 30 | 30 | 35 | 30 | 30 | 30 | 35 | ||
| G1 | 1155 | 1180 | 1455 | 1414 | 1825 | 1200 | 1200 | 1485 | 1730 | ||
| I1 | 712 | 740 | 884 | 990 | 1090 | 682 | 701 | 916 | 1050 | ||
| J1 | 1205 | 1240 | 1515 | 1674 | 1895 | 1260 | 1260 | 1545 | 1800 | ||
| M1 | 620 | 700 | 860 | 890 | 950 | 700 | 700 | 800 | 900 | ||
| N1 | 500 | 550 | 650 | 700 | 800 | 500 | 500 | 6000 | 700 | ||
| Q1(KN) | 11.23 | 17.3 | 28.2 | 36.5 | 57.8 | 15.4 | 25 | 37.2 | 60 | ||
| Q2(KN) | 12.79 | 19.46 | 33.8 | 39.2 | 65.8 | 19.25 | 32 | 41.3 | 65.3 | ||
| Q3(KN) | 17.86 | 28.17 | 46.31 | 5850 | 85.9 | 20.34 | 35 | 60.5 | 92.2 | ||
| Q4(KN) | 15.6 | 24.83 | 40.7 | 52.8 | 74.28 | 22.2 | 37 | 54.5 | 84 | ||
| 地脚螺栓 | 8-M20×400 | 8-M20×400 | 8-M24×500 | 8=M24500 | 8-M24×500 | 8M20×400 | 8-M20×400 | 8-M24×500 | 8-M24×500 | ||